Parkland and Water Meadows
Protecting and celebrating our Parkland and Water Meadows
We are delighted to be part of the South Downs National Park Authority Initiative working in partnership with the Eastern South Downs Farmers Group called ‘Meet The Farmer’ . All Farmers have been keen to share their craft and care of their farmland. and have worked with filmmakers to explain their process of caring for their land with the public. Look out for each farmer telling their story through an innovative trail of ‘watching & listening posts’ linked to short films about their work out in the South Downs. All films that are accessible within each parkland via signs with QR codes. Please see our ‘Meet the Farmer’ film above.
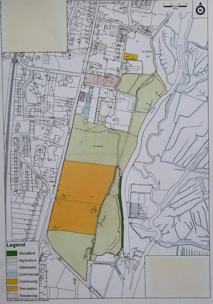
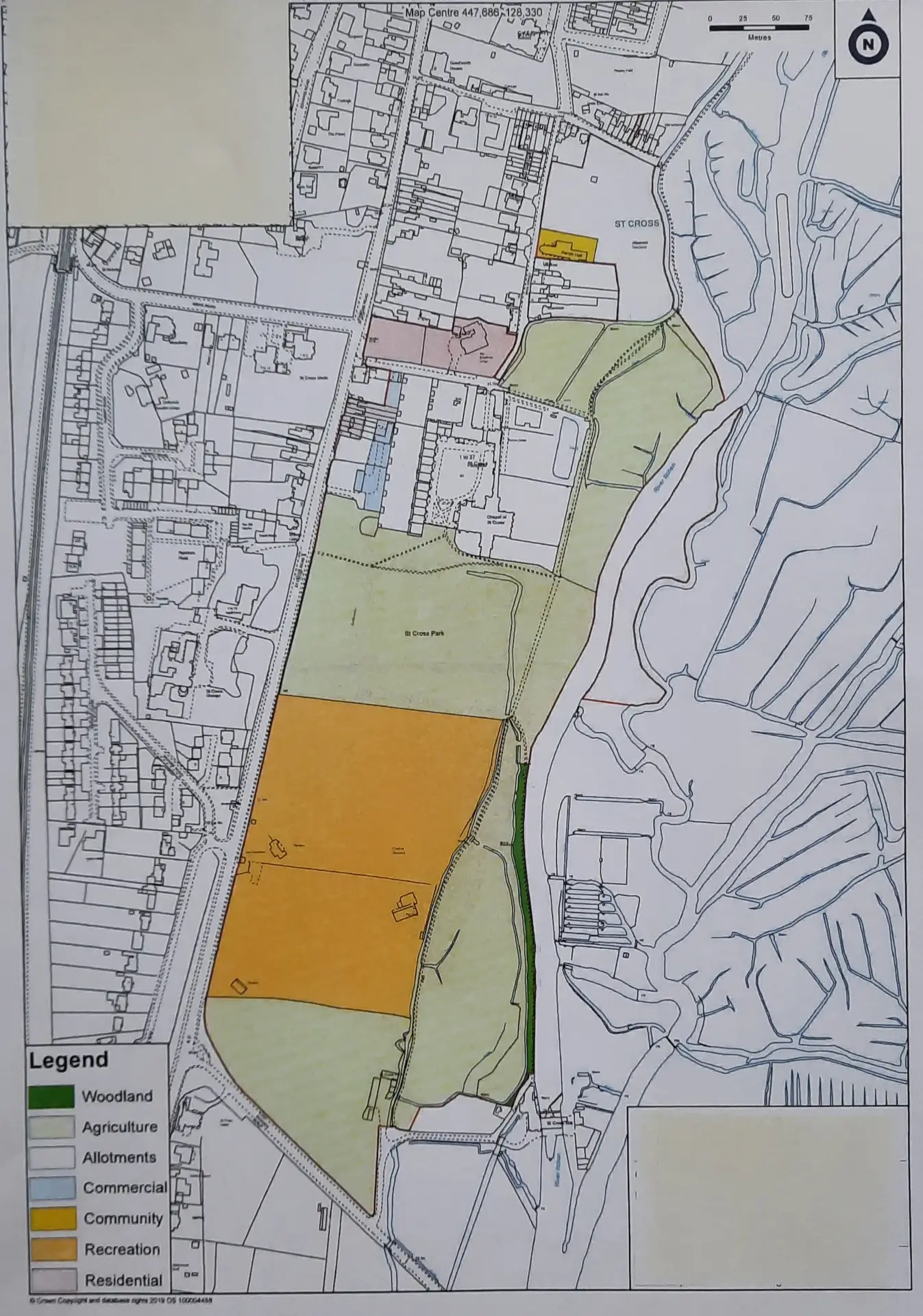
Our grasslands and chalk streams surrounding the Hospital of St Cross are carefully managed for their nature conservation. We are located next to the River Itchen on the outskirts of Winchester City, and our parkland’s importance as a green corridor for wildlife provides vital feeding and breeding sites. The extent of our Hospital owned land is shown on the map (on right).
Since October 2022, (after a 10 year period of the Hampshire and Isle of Wight Wildlife Trust’s (HIWWT) having tenancy to manage our meadows and chalk streams); a new local landowner has taken up the lease and will continue to graze livestock on the Hospital’s grasslands.
During this transition in October 2022, The Hospital of St Cross held an open public meeting to discuss our plans for the future of the Meadows; we wish to thank all those who attended. To view the responses to questions that were asked during the meeting – please click here to view the document..
Dog walking: We welcome all public to enjoy our meadows and parklands. Please see our usual rules for management of dogs in public and sensitive site areas, for the benefit of all users, and particularly the livestock.
Livestock: Our new grazier has agreed to indicate if livestock are grazing in an area with signs. In return we ask that the following guidance is adhered to:
LIVESTOCK GRAZING IN AN AREA – DOGS ON LEADS
NO LIVESTOCK PRESENT – DOGS UNDER CONTROL
Dogs under control means:
• Your dog is near you and on the path
• You are certain it will come to you when called
• You don’t let your dog chase wildlife
• Ensure that your dog’s behaviour is not unsettling or a threat to other visitors.
At all times, please ensure you are watching your dog and clean up after it.
Thank you, we do appreciate your co-operation on this matter.
